中央新风除湿机
新闻资讯
联系我们
联系人: 房经理 / 阮经理
手机: 13616711947
电话: 400-8959-004
邮箱: 1526905454@qq.com
地址: 浙江省杭州市临平区顺风路528号 ,厂址:浙江省湖州市德清县禹越镇振兴路9号
双向流新风除湿机(全热交换型),除具备以上机型双向流新风换气、除湿、净化功能以外,还增加了具有热湿交换功能的能量回收装置,排风与新风在能量回收装置内进行热量交换,从而达到回收冷热量和湿度的目的,节约空调与供暖能耗。在极端天气下可自动调节室外新风摄入量,有效控制污染物及高湿空气对室内环境的影响。
技术参数:
设备类别 | 双向流全热交换新风一体机 | 噪音 | <45DB |
设备型号 | NLD-350EB | 压缩机 | Embraco/R134A |
测试工况 | 30°C 80% | 换热器 | 亲水铝箔紫铜管 |
除湿能力 | 100L/天 | 积水盘 | 304不锈钢 |
送风余压 | 150Pa | 排水管径 | DN20 |
风机类型 | 变频风机 | 过滤(选配) | 初效/中效/高效 |
送风风量 | 1000-1200m3/h | 净化(选配) | UV杀菌/负离子 |
新风量 | 430-550m3/h | 新风口 | 200mm |
回风风量 | 570-1200m3/h | 回风口 | 200mm |
排风量 | 300m3/h | 送风口 | 200mm |
功率/电流 | 1100W/5A | 排风口 | 200mm |
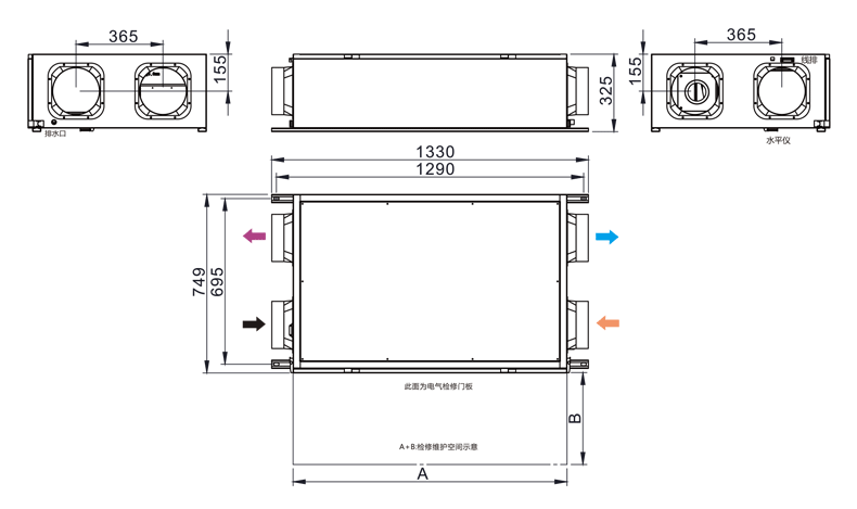
电压/频率 | 220V/50Hz | 外形尺寸 | 1330*749*325mm |
控制方式 | 全触摸LCD液晶 | 净重(kg) | 85kg |
防水/防电 | I类/IPX3 | A-mm/B-mm | 1150mm/470mm |
外形尺寸图:

- 上一个:双向流全热交换新风一体机 NLD-350EB
- 下一个:没有了


QQ在线客服-房经理