欢迎来到纳兰达(杭州)科技有限公司官网,我司专注于生产除湿机、加湿机、恒湿机、恒温恒湿机,很高兴为您服务!

生产快,交期短,高品质

国内外有实力的除湿机研发生产制造厂家!

免费咨询服务热线

400-8959-004

中央新风除湿机

新闻资讯

联系我们

联系人: 房经理 / 阮经理

手机: 13616711947

电话: 400-8959-004

邮箱: 1526905454@qq.com

地址: 浙江省杭州市临平区顺风路528号 ,厂址:浙江省湖州市德清县禹越镇振兴路9号

双向流全热交换新风一体机 NLD-250EB

• 恒氧 恒湿 洁净 节能

• 强劲高热回收效率,高效更节能

• 可去除PM2.5

• 强力除菌的同时,0增臭氧量

• 高效降噪材料,更轻音

在线订购

     双向流新风除湿机(全热交换型),除具备以上机型双向流新风换气、除湿、净化功能以外,还增加了具有热湿交换功能的能量回收装置,排风与新风在能量回收装置内进行热量交换,从而达到回收冷热量和湿度的目的,节约空调与供暖能耗。在极端天气下可自动调节室外新风摄入量,有效控制污染物及高湿空气对室内环境的影响。



   技术参数:


设备类别

双向流全热交换新风一体机

噪音

<45DB

设备型号

NLD-250EB

压缩机

Embraco/R134A

测试工况

30°C 80%

换热器

亲水铝箔紫铜管

除湿能力

40L/天

积水盘

304不锈钢

送风余压

150Pa

排水管径

DN20

风机类型

两档

过滤(选配)

初效/中效/高效

送风风量

650-780m3/h

净化(选配)

UV杀菌/负离子

新风量

180-250m3/h

新风口

150mm

回风风量

400-780m3/h

回风口

150mm

排风量

120m3/h

送风口

150mm

功率/电流

720W/3.2A

排风口

150mm

电压/频率

220V/50Hz

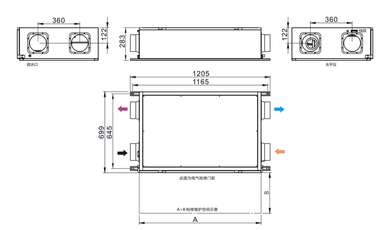
外形尺寸

1205*699*283mm

控制方式

全触摸LCD液晶

净重(kg)

60kg

防水/防电

I类/IPX3

A-mm/B-mm

1050mm/460mm



   外形尺寸图:

ECD-250EB.png

相关标签:

相关产品